Studio IV - Design - HOLT WATTERs FIELD STATION
Phase I of this project was a collaboration of 22 students and faculty in from University of Colorado Denver's Colorado Building Workshop and Bespoke Project Solutions, who oversaw construction in both Denver and Antarctica.
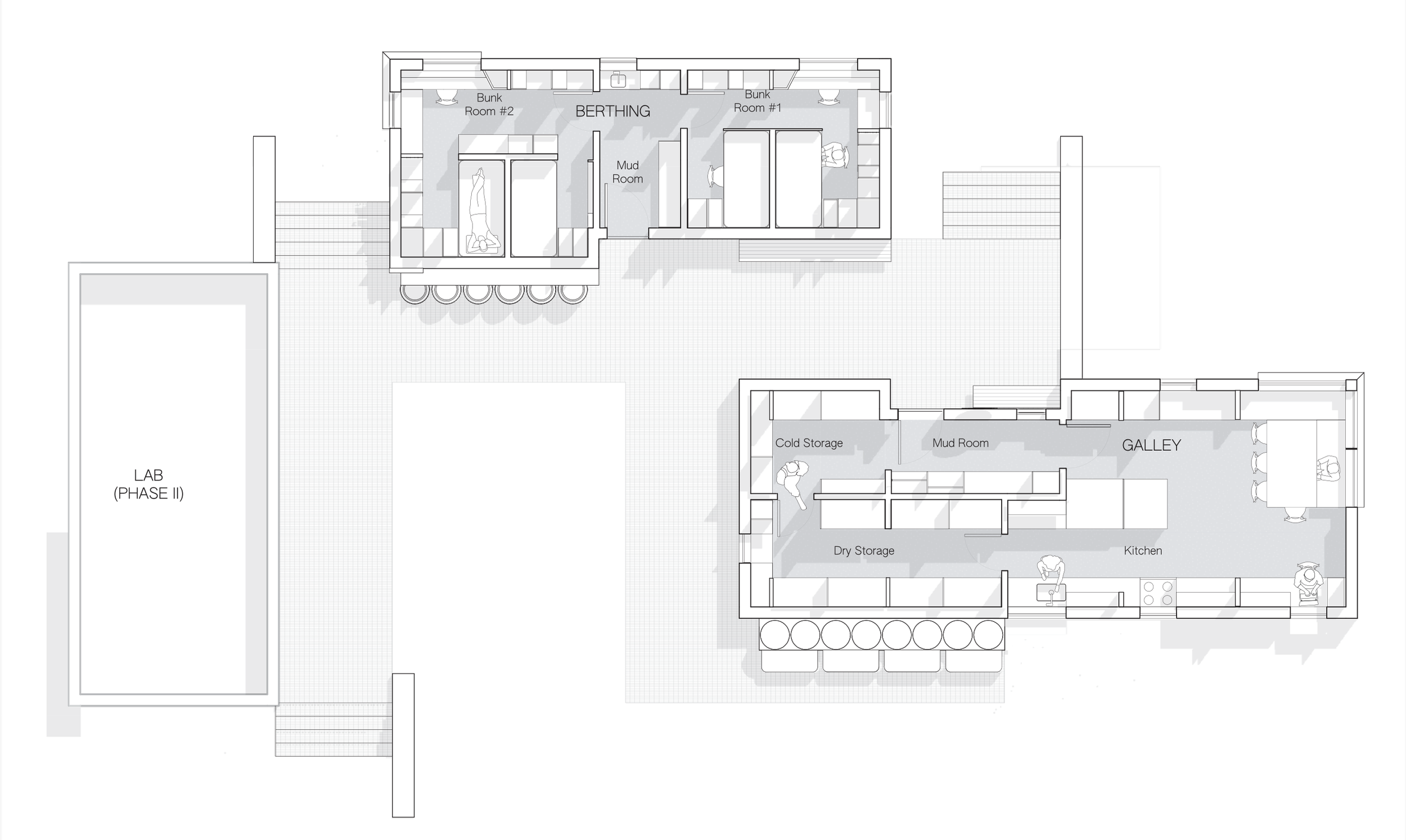
NOAA's research facility at Cape Shirreff, Livingston Island, Antarctica required replacement. The scope of Phase I included communal and sleeping quarters divided between two buildings, Berthing and Galley. The structures were designed to withstand sustained winds up to 90 mph with gusts to 130 mph, temperatures between -40 and 60 degrees F, snow loads/heavy moisture, and other extreme weather conditions, while minimizing impact on underlying substrates and soils. Additionally, all construction materials were designed for manual transport by 1 to 4 people, without the aid of heavy equipment, flat-packable, and to fit into three standard 20' shipping containers. Other functions that support human life, like solar and water collection, were also a requirement. A "twisted gable" roof design emerged, which optimized the buildings' performance of these functions and maximized the volumetric space, while also complementing the slope of the landscape.
Completion of Phase I in Cape Shirreff, Antarctica.
Map of Antarctica and Cape Shirreff location
Solar/water collection/volumetric analysis of the twisted gable roof
Berthing and Galley Floor Plans
Interior rendering of the Galley kitchen area
Interior rendering of a Berthing sleeping area